Sửa trang

TỔNG QUAN DỰ ÁN VINHOMES OCEAN PARK 2


 Dự án: Vinhomes Ocean Park 2 – Hưng Yên Tên cũ: Vinhomes Dream City
❖ Vị trí: Thuộc 2 xã Long Hưng và Nghĩa Trụ, huyện Văn Giang, Hưng Yên
❖ Chủ đầu tư: Tập đoàn Vingroup nổi tiếng với các dự án nhà ở và khu đô thị đẳng cấp như Vinhomes Time City, Vinhomes Royal City, Vinhomes Ocean Park, Vinhomes Ocean Park 3…)
❖ Chịu trách nhiệm quản lý: Vinhomes
❖ Tổng thầu xây dựng: Central, Delta
❖ Đơn vị giám sát: Mace (Anh)
❖ Quy mô dự án: Hơn 457 ha
❖ Loại hình phát triển:
  • Nhà ở thấp tầng: Biệt thự đơn lập, Biệt thự song lập, Biệt thự tứ lập, Nhà liền kề, Shophouse
  • Cao tầng: Căn hộ chung cư do chủ đầu tư Masterise Homes triển khai. Để xem thông tin về khu chung cư cao cấp, quý khách tham khảo thêm tại: https://masteriserealty.com/lumiere
❖ Mật độ xây dựng: Dự kiến 35%
 Quy mô dân số: Dự kiến 65.000 người
❖ Tổng mức đầu tư: 33 nghìn tỷ đồng
❖ Tổng số lượng căn hộ: 124.000 căn hộ, 2.041 sản phẩm thấp tầng
❖ Diện tích căn hộ: 36 – 90m2
❖ Pháp lý: Sổ hồng sở hữu lâu dài; 50 năm cho người nước ngoài Công bố mở bán đợt 1: Tháng 5/2022
❖ Thời gian bàn giao: Bắt đầu từ quý IV/2023

CẬP NHẬT THÔNG TIN DỰ ÁN VINHOMES OCEAN PARK 1, 2, 3
Xem thêm
Tổng hợp các thông tin mới nhất
Cháy Hàng Be2 Và Be3 Trong 48 Giờ Sau Khi Mở Bán: Vinhomes Chuẩn Bị Cho Ra Mắt Tòa Be1 - T
08-08-2024
Tin tức dự án

Cháy Hàng Be2 Và Be3 Trong 48 Giờ Sau Khi Mở Bán: Vinhomes Chuẩn Bị Cho Ra Mắt Tòa Be1 - T

Trong tháng 6, Vinhomes cho ra mắt liên tiếp 2 tòa chung cư thuộc phân khu The Beverly là Be2 và Be3 và chính thức "cháy hàng" chỉ trong vòng 48 giờ sau khi mở bán, khẳng định sức hút mạnh mẽ của dự án này. Tiếp nối thành công vang dội của Be2 và Be3, Vinhomes Miền Bắc sẽ giới thiệu đến quý khách hàng siêu phẩm mới nhất - Be1, tọa lạc tại vị trí đắc địa ngay trung tâm phân khu The Beverly.

Đọc Tiếp
The Beverly - Sống Chất Mỹ Tại Thành Phố Biển Hồ Vinhomes Ocean Park Gia Lâm
08-08-2024
Tin tức dự án

The Beverly - Sống Chất Mỹ Tại Thành Phố Biển Hồ Vinhomes Ocean Park Gia Lâm

 Trên bản đồ bất động sản thủ đô, Vinhomes Ocean Park Gia Lâm nổi lên như một "siêu thành phố biển hồ" đầy ấn tượng, thu hút mọi ánh nhìn bởi hệ sinh thái tiện ích đẳng cấp và những phân khu mang đậm phong cách sống riêng biệt. 

Nổi bật giữa những "viên ngọc quý" ấy, Vinhomes Miền Bắc sẽ đem đến cho bạn The Beverly - phân khu lấy cảm hứng từ nước Mỹ hoa lệ -  mở ra cơ hội cho những ai khao khát tận hưởng "chất sống Mỹ" hiện đại, phóng khoáng và đẳng cấp ngay tại Hà Nội.

Đọc Tiếp
Thông Tin Mở Bán The Beverly Gia Lâm : Giá Bán Và Chính Sách Bán Hàng
08-08-2024
Tin tức dự án

Thông Tin Mở Bán The Beverly Gia Lâm : Giá Bán Và Chính Sách Bán Hàng

Cùng tìm hiểu những thông tin mở bán The Beverly Gia Lâm để nắm bắt được những thông tin quan trọng trong quá trình đưa ra quyết định mua hoặc đầu tư.

Đọc Tiếp
Thông Tin Tổng Quan Cụm Chung Cư The Beverly - Vinhomes Ocean Park Gia Lâm
08-08-2024
Tin tức dự án

Thông Tin Tổng Quan Cụm Chung Cư The Beverly - Vinhomes Ocean Park Gia Lâm

 

The Beverly Vinhomes Ocean Park Gia Lâm mang đến một không gian sống đẳng cấp, sang trọng, lấy cảm hứng từ khu phố nhà giàu Beverly Hills, California, Hoa Kỳ. Nơi đây hội tụ những tinh hoa kiến trúc hiện đại, kết hợp hài hòa cùng cảnh quan thiên nhiên xanh mát, tạo nên một ốc đảo bình yên giữa lòng thành phố sôi động. Bài viết này, cùng Vinhome Miền Bắc khám phá tổng quan cụm chung cư The Beverly nhé!

Đọc Tiếp
Chia Sẻ Kinh Nghiệm Ăn Chơi Tại Vinhomes Ocean Park 2
08-08-2024
Tin tức dự án

Chia Sẻ Kinh Nghiệm Ăn Chơi Tại Vinhomes Ocean Park 2

Vinhomes Ocean Park 2 là một khu đô thị lớn với diện tích khá rộng rãi, tại nơi đây các bạn có thể trải nghiệm và tận hưởng những dịch vụ sang trọng tiện nghi nhất, nhiều khu vui chơi giải trí cực kỳ hấp dẫn luôn thu hút được nhiều khách hàng. Bài viết sau đây Vinhomes Miền Bắc sẽ chia sẻ cho các bạn về những kinh nghiệm ăn chơi tại Vinhomes Ocean Park 2 nhé!

 
Đọc Tiếp
LÝ DO BẠN NÊN CHỌN - Vinhomes Ocean Park
Vinhomes Hưng Yên chính thức trở thành siêu phẩm bất động sản hot nhất hiện nay. Dự án được đầu tư bài bản từ mọi mặt. Từ quy mô cho đến thiết kế xây dựng khiến các nhà đầu tư cùng người mua sôi sục. Đặc biệt với các dự án bất động của Vingroup thì vị trí chính là yếu tố đắt giá nhất. Đây là lý do khiến cho dự án tại Hưng Yên được đánh giá là sản phẩm bất động sản sở hữu vị trí “kim cương” đắt giá nhất khu vực nơi đây.
Hơn nữa, vị trí xây dựng dự án còn thuộc khu vực phát triển bậc nhất của tỉnh hưng yên. Do đó mà dự án không chỉ thuận lợi cho việc di chuyển mà còn có nhiều lợi thế từ khu vực. Điều này cũng trở thành đòn bẩy giúp thúc đầy mạnh mẽ các hoạt động kinh doanh tại dự án. Đồng thời giúp dự án thuận lợi, đáp ứng các mục đích phát triển trở thành một khu đô thị sinh thái hiện đại nhất Việt Nam, phục vụ cư dân sinh sống.
Với việc sở hữu vị trí được bao quanh bởi các con sông lớn giúp dự án là nơi được đón gió êm đềm từ sông thổi vào. Nhờ đó mang đến bầu không khí thoáng đãng. Bên cạnh đó, còn có hệ thống cảnh quan xung quanh giúp gia tăng vẻ đẹp cũng như giá trị và tiềm năng cho dự án.
Chi tiết vị trí tọa lạc của dự án như sau:
- Phía Bắc dự án: Tiếp giáp với đường huyện ĐH.17
- Phía Nam dự án: Tiếp giáp với đất canh tác các xã Tân Tiến, Vĩnh Khúc.
- Phía Đồng dự án: Tiếp giáp với đất canh tác và đất ở xã Nghĩa Trụ.
- Phía Tây dự án: Tiếp giáp với tuyến đường cao tốc Hà Nội – Hải Phòng.

MẶT BẰNG DỰ ÁN VINHOMES OCEAN PARK 2


Hạ tầng giao thông hoàn thiện với nhiều tuyến đường huyết mạch
Từ việc sở hữu vị trí đắc địa của khu vực mà Vinhomes Hưng Yên được thừa hưởng rất nhiều lợi ích đắt giá. Lợi ích đầu tiên chính là dự án sẽ được bao quanh bởi hệ thống hạ tầng giao thông đã hoàn thiện.
Xung quanh dự án Vinhomes Ocean Park được bao bọc bởi nhiều tuyến đường huyết mạch của thành phố. Do đó mà giao thương đi lại của cư dân nhà liền kề Vinhomes Ocean Park cực kỳ thuận lợi. Nhất là cư dân có thể di chuyển tới các khu vực lân cận và khu vực xung quanh vô cùng thuận lợi mà không mất quá nhiều thời gian. Những tuyến đường huyết mạch nối liền của dự án phải kể đến như:
  • Đường cao tốc Hà Nội - Hải Phòng
  • Tuyến đường 379
  • Tuyến đường Cổ Linh
  • Cầu Thanh Trì
  • Tuyến đường quốc lộ 5B
  • Tuyến đường vành đai 3,5 …
Mạng lưới kết nối khu vực chặt chẽ
Với việc sở hữu vị trí xây dựng thuận lợi này đã giúp dự án được thừa hưởng toàn bộ cảnh quan, hạ tầng giao thông đắt giá có 1 – 0 – 2 tại khu vực. Trong đó địa thế kết nối khu vực chặt chẽ này còn mang đến mạng lưới liên kết khu vực chặt chẽ cho dự án. Chính vì thế, sống tại đây cư dân nhà liền kề Vinhomes Ocean Park có thể di chuyển qua lại giữa dự án và các khu vực trọng điểm lân cận một cách dễ dàng, không mất nhiều thời gian.
Nhờ sở hữu lợi thế này mà chỉ cần khoảng 30 phút, cư dân có thể di chuyển đến rất rất nhiều địa điểm quan trọng xung quanh. Chẳng hạn:
  • Muốn tới trung tâm Hà Nội mất khoảng 25 phút
  • Mất 22 phút để tới trung tâm Mỹ Đình
  • Đi sân bay Quốc tế Nội Bài mất 25 phút
  • Liền kề Vinhomes Ocean Park
  • Liền kề Ecopark
  • Liền kề KĐT Đại An
Tiềm năng lợi nhuận lớn
Vinhomes Hưng Yên là dự án xây dựng thuộc khu vực huyện Văn Giang. Hiện nay, Văn Giang nằm trong vùng quy hoạch của thủ đô Hà Nội. Do vậy mà huyện Văn Giang có tốc độ đô thị hóa và phát triển bậc nhất tỉnh Hưng Yên. Bên cạnh đó, chính sự kết nối giao thông đồng bộ của khu vực với nhiều tuyến đường huyết mạch khác đi qua như quốc lộ 5, 5B, cao tốc Hà Nội – Hải Phòng, cao tốc Hà Nội – Hưng Yên,…Từ đây mang đến tiềm năng phát triển cho dự án trong tương lai.

Văn Giang cũng được định hướng trở thành thị xã trong thời gian tới càng khiến giá trị dự án ngày tăng cao. Dự án phát triển để trở thành một tổ hợp đô thị đồng bộ và hiện đại hàng đầu trong khu vực thủ phủ kinh tế Hưng Yên. Các sản phẩm dự án dự kiến phát triển đáp ứng được các yêu cầu và mong muốn của cư dân.
Tất cả những yếu tố trên đã đưa dự án nhanh chóng trở thành “cực phẩm” của giới đầu tư. Khi đầu tư mua bán sản phẩm tại đây sẽ giúp đem đến mức lợi nhuận cao nhất cho chủ sở hữu. Đây cũng chính là giá trị khiến sức nóng của dự án ngày càng gia tăng và không có dấu hiệu giảm nhiệt.

ĐĂNG KÝ NHẬN THÔNG TIN TỪ CHÚNG TÔI
Để nhận những thông tin khuyến mãi, chiết khấu hấp dẫn, hãy đăng ký ngay hôm nay

TIỆN ÍCH VINHOMES OCEAN PARK 2


Vinhomes với tâm huyết hình thành nên một “Quận Ocean” The New tại Hà Nội. Do vậy mà nội khu dự án đã kiến tạo nên một thiên đường tuyệt mỹ, đẳng cấp tiên phong. Với cộng đồng cư dân văn minh dành cho giới tinh hoa với vị trí tọa lạc vàng đã được bảo chứng bởi thương hiệu của chủ đầu tư Vingroup.
Dự án Vinhomes The Empire – siêu quần thể đô thị biển có tổng quy mô diện tích rộng lên tới 1000 ha hàng đầu Việt Nam. KĐT chính là hệ sinh thái All-in-One đa dạng gồm các hạng mục tiêu chuẩn 5 sao mang tầm cỡ quốc tế. Từ đó hứa hẹn mang đến cuộc sống tiện nghi, đầy đủ cho mọi cư dân.
Điểm nhấn tiện ích đẳng cấp có thể kể đến như:
  • Công viên Royal Wave Park: Có tổng diện tích lên tới 18ha với thiết kế là một tổ hợp biển tạo sóng lớn nhất thế giới.
  • Hồ nước mặn Laguna: Có diện tích rộng lớn nhất châu Á lên tới 9.3 ha
  • Đại lộ kinh đô ánh sáng (Kingdom Avenue) phồn hoa, đô lệ.
  • Quảng trường Empire Square sôi động. Đây cũng là nơi diễn ra các chương trình và sự kiện quanh năm
  • Đài phun nước
  • Tổ hợp hơn 30 công viên chủ đề
  • 2 trung tâm thương mại Vincom
  • 2 bệnh viện đa khoa quốc tế Vinmec
  • Hệ thống trường học các cấp
  • Đại học tinh hoa Vinuni
  • Tòa nhà công nghệ TechnoPark
  • Cửa hàng coffee
  • Boutique house thiết kế với kiến trúc Pháp
  • Công viên cây xanh
  • Vườn nướng BBQ ngoài trời
  • Sân thể dục thể thao đa năng: sân tennis; sân chơi cầu lông; bóng chuyền;….
  • Khu vui chơi dành cho trẻ em
  • Phòng tập gym
  • Spa chăm sóc sức khỏe
  • Sân tập golf
Và bên cạnh có còn có chuỗi các hạng mục tiện ích, điểm đến mới là điểm nhấn của toàn dự án. Điều này đã ghi dấu tên tuổi, vị thế đẳng cấp của sản phẩm trên thị trường BĐS Hưng Yên và các khu vực về phía Bắc.

ĐĂNG KÝ NHẬN THÔNG TIN TỪ CHÚNG TÔI
Để nhận những thông tin khuyến mãi, chiết khấu hấp dẫn, hãy đăng ký ngay hôm nay
KHÁCH HÀNG NÓI GÌ VỀ CHÚNG TÔI

MẶT BẰNG VINHOMES OCEAN PARK 2


Mặt bằng tổng quan dự án Vinhomes Hưng Yên
Dự án dự kiến sẽ được quy hoạch xây dựng trên lô đất có diện tích trên 457 ha. Trong đó mật độ xây dựng dự kiến sẽ là 35%. So với tổng quy mô rộng lớn mà dự án sở hữu thì đây là tỷ lệ xây dựng khá thấp. Dù vậy mặt bằng dự án vẫn tích hợp đầy đủ các loại nhà ở từ căn hộ chung cư đến biệt thự, nhà liền kề Vinhomes Ocean Park, shophouse,…phục vụ cư dân.
Đặc biệt theo thông tin quy hoạch được chủ đầu tư cung cấp và mặt bằng tổng quan dự án thì sẽ có 8 phân khu được xây dựng. Mỗi phân khu sở hữu những đặc trưng kiến trúc và cảnh quan riêng tạo nên những không gian sống đẹp, thoải mái cho cư dân an cư, kinh doanh. Chi tiết các phân khu dự kiến xây dựng gồm có:
+ Phân khu Kinh đô Ánh Sáng

+ Phân khu San Hô

+ Phân khu Chà Là

+ Phân khu Cọ Xanh.

+ Phân khu Hải Âu

+ Phân khu Đảo Dừa

+ Phân khu Ngọc Trai

Số lượng các tòa căn hộ được xây dựng tại dự án dự kiến sẽ là 50 tòa. Ngoài ra còn có hàng nghìn căn shophouse, nhà liền kề Vinhomes Ocean Park, biệt thự,….được xây dựng. Theo dự kiến dự án sẽ cung cấp không gian sống cho 65.000 người.

Liên hệ

Hà NộiHồ Chí MinhHải PhòngQuảng Ninh
Gửi liên hệ
MẶT BẰNG DỰ ÁN VINHOMES OCEAN PARK 2
Khu đô thị Vinhomes Ocean Park sở hữu tổng diện tích lên đến 420 ha. Trong tương lai khi hoàn thiện, đây sẽ là nơi sinh sống của hơn 90.000 người dân. Mật độ xây dựng của dự án chỉ 19% , các phần diện tích còn lại dành cho không gian sống xanh, tiện ích dịch vụ cùng cảnh quan thiên nhiên.
Thiết kế quy mô của dự án được chia thành như sau:
+ Khu cao tầng: gồm có 4 phân khu The Park – The Sea – The River – The Lake.
+ Khu thấp tầng: gồm các phân khu Ngọc Trai – Sao Biển – San Hô – Hải âu
Bạn có thể lựa chọn cho mình và gia đình các căn hộ cao cấp thuộc cả ba dòng sản phẩm là Sapphire; Ruby; Diamond tùy theo nhu cầu sử dụng và tài chính.
DỰ ÁN ĐÃ THỰC HIỆN
Công ty Ngọc Quyết tự hào là một trong những công ty phân phối kinh xấy dựng hàng đầu Việt Nam

 THIẾT KẾ SẢN PHẨM DỰ ÁN ĐẲNG CẤP


Vinhomes Ocean Park 2 Hưng Yên là dự án hiếm hoi của khu vực tỉnh Hưng Yên sở hữu quy mô xây dựng lớn. Đồng thời sở hữu số lượng các phân khu nổi bật lên tới 8 phân khu như trên. Tuy nhiên thay vì đưa ra mặt bằng chi tiết 8 phân khu thì chủ đầu tư cung cấp mặt bằng chi tiết các phân khu theo chức năng, giá biệt thự Vinhomes Ocean Park.
Mặt bằng chi tiết Shophouse và liền kề
Shophouse và nhà liền kề Vinhomes Ocean Park là những sản phẩm cao cấp của dự án. Đây là phân khu chính và chiếm số đông tại dự án dự án. Mặt bằng phân khu này được xây dựng với tổng diện tích lớn lên tới 112ha. Ngoài ra nơi đây còn được bố trí không gian cây xanh rộng 12ha. Các công trình công cộng chiếm 10ha.
Mặt bằng chi tiếtnhà liền kề Vinhomes Ocean Park- The Empire Vinhomes
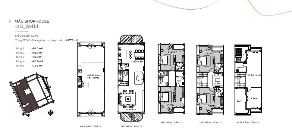
Mặt bằng chi tiết Shophouse The Empire Vinhomes
Mặt bằng chi tiết biệt thự
Biệt thự là một trong những hạng mục sản phẩm cao cấp mà chủ đầu tư chú trọng phát triển. Vì vậy phân khu đất biệt thự chính là phân khu đắt giá nhất dự án Vinhomes Ocean Park 2 Hưng Yên. Phân khu này bố trí nhiều căn biệt thự kiểu mẫu cho cư dân. Các căn biệt thự sang trọng được xây dựng có view nhìn hồ nước.
Mặt bằng chi tiết phân khu này được xây dựng với quy mô lên tới 87ha. Mặt bằng khu đất biệt thự rộng 15ha. Mặt nước và hồ cảnh quan được quy hoạch với tổng diện tích khoảng 30ha. Đất trồng cây đô thị quy mô khoảng 42ha.
Mặt bằng chi tiết biệt thự The Empire Vinhomes
Phân khu này được thiết không chỉ là nơi cung cấp những căn biệt thự sang trọng, đẳng cấp đắt giá. Mà nơi đây còn mang đến cho cư dân một không gian sống gũi thiên nhiên, khí hậu trong lành, mát mẻ nổi bật ngay giữa lòng phố thị sầm uất.

HẢI LONG GLASS
Với bề dày kinh nghiệm trong lĩnh vực kính xây dựng, chúng tôi cam kết mang đến cho quý khách hàng những sản phẩm chất lượng nhất, mẫu mã hiện đại, đảm bảo an toàn tuyệt đối.
Hotline : 0934 503 368
Tư vấn chuyên nghiệp
Sự thành công bắt nguồn từ khâu chuẩn bị, chúng tôi luôn tư vấn cho khách hàng giải pháp phù hợp nhất với yêu cầu công trình
Hỗ trợ kỹ thuật nhanh chóng
Với lợi thế về đội ngũ, chúng tôi luôn đảm bảo hỗ trợ kỹ thuật nhanh chóng và chính xác.
Nhà máy hiện đại
Với thế mạnh về nhà máy sản xuất, chúng tôi là một trong số ít đơn vị chủ động được sản phẩm về nhôm kính
Thi công toàn quốc
Đội ngũ Hải Long Glass luôn sẵn sàng cho mọi công trình trên toàn quốc. Bảo hành trọn đời sản phẩm
ĐĂNG KÝ NHẬN THÔNG TIN TỪ CHÚNG TÔI
Để nhận những thông tin khuyến mãi, chiết khấu hấp dẫn, hãy đăng ký ngay hôm nay
nhà mẫu VINHOMES OCEAN PARK 2
Khu đô thị Vinhomes Ocean Park sở hữu tổng diện tích lên đến 420 ha. Trong tương lai khi hoàn thiện, đây sẽ là nơi sinh sống của hơn 90.000 người dân. Mật độ xây dựng của dự án chỉ 19% , các phần diện tích còn lại dành cho không gian sống xanh, tiện ích dịch vụ cùng cảnh quan thiên nhiên.
Thiết kế quy mô của dự án được chia thành như sau:
+ Khu cao tầng: gồm có 4 phân khu The Park – The Sea – The River – The Lake.
+ Khu thấp tầng: gồm các phân khu Ngọc Trai – Sao Biển – San Hô – Hải âu
Bạn có thể lựa chọn cho mình và gia đình các căn hộ cao cấp thuộc cả ba dòng sản phẩm là Sapphire; Ruby; Diamond tùy theo nhu cầu sử dụng và tài chính.

CƠ CẤU SẢN PHẨM TẠI VINHOMES OCEAN PARK 2

CHUNG CƯ
Dòng sản phẩm chung cư tại Vinhomes Ocean Park 2 sẽ có 22 tòa tháp căn hộ do chủ đầu tư Masterise Homes triển khai và được chia làm 2 khu tọa lạc tại những vị trí đắt giá bậc nhất Ocean Park 2, bao gồm:
Khu 1 được mở bán đầu tiên gồm có 14 tòa tháp căn hộ bao quanh Đại Kỳ Quan VinWonder Wave Park với định vị thuộc phân khúc Lumière cao cấp.
Khởi công: quý 2/2024.
Mở bán: quý 3/2024
Bàn giao: quý 3/2026
Quý khách tham khảo thông tin chi tiết tại: https://masteriserealty.com/lumiere Khu thứ 2 gồm có 8 tòa tháp căn hộ nằm ôm trọn Công Viên Trung Tâm The Empire Park.

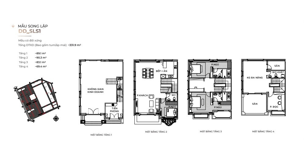
BIÊT THỰ
Biệt thự là dòng sản phẩm cao cấp nhất tại dự án Vinhomes Ocean Park 2 Hưng Yên. Những căn biệt thự tại đây được xây dựng mang đến một phong cách thiết kế đậm chất kiến trúc Đông Dương. Kết hợp với đó là những đường nét đậm chất Á Đông và một lối sáng tạo theo phong cách kiến trúc Pháp. Vì thế những căn biệt thự nơi đây không chỉ sang trọng mà còn tối giản đầy thu hút.
Với việc được thiết kế dựa theo nhiều phong cách kiến trúc khác nhau giúp các căn biệt thự trở nên nổi bật, khác biệt. Các sản phẩm mang đến cho cư dân sự hiện đại, tinh tính và phong cách trên từng chi tiết dù là nhỏ nhất. Những căn biệt thự dự kiến được xây dựng tại dự án đa dạng về chủng loại. Chi tiết bao gồm:
Biệt thự đơn lập
Biệt thự song lập
Biệt thự tứ lập
Biệt thự đơn lập được thiết kế có diện tích rộng rãi. Vì vậy đây là mẫu không gian sống hoàn hảo dành cho những người có nhu cầu về chỗ ở thoáng rộng. Đặc biệt mẫu biệt thự này còn được thiết kế có tầm nhìn thoáng, rộng. Hầu hết các sản phẩm đều có view hồ đẹp và có cây xanh rợp bóng. Biệt thự song lập được thiết kế đi kèm với nhau. Còn biệt thự tứ lập có diện tích xây dựng vừa phải. Vì thế mẫu biệt thự này hoàn toàn đáp ứng được yêu cầu của những cư dân về một cuộc sống tinh tế, đậm phong cách. Nội thất biệt thự được bố trí khoa học với các sản phẩm cao cấp.
LIỀN KỀ
Khu liền kề dự án Vinhome The Empire được đánh giá là hạng mục sản phẩm mở ra cơ hội đầu tư sinh lời cao cho người sở hữu. Đồng thời mang đến giá trị cuộc sống hoàn hảo mà cư dân cần.
Các căn biệt thự liền kề được thiết kế với mặt tiền mang đậm phong cách thiết kế Châu Âu. Còn cấu trúc bên trong được thiết kế vừa hiện đại sang trọng vừa thông thoáng thoải mái. Nội thất căn biệt thự được thiết kế bài bản, tỉ mỉ đến từng chi tiết. Diện tích rộng rãi giúp tạo nên sự đẳng cấp riêng biệt hấp dẫn người mua.
SHOPHOUSE
Shophouse là sản phẩm nổi bật với điểm nhấn trong phong cách thiết kế. Vì vậy so với các loại hình sản phẩm phát triển tại dự án thì Shophouse nhận được nhiều sự quan tâm nhất từ phía khách hàng.
Shophouse Vinhomes Ocean Park Hưng Yên được thiết kế tỉ mỉ trong từng chi tiết. Các đường nét, họa tiết được mài dũa, tô vẽ cẩn thận mang đậm phong cách tân cổ điển. Không gian các căn Shophouse thiết kế theo lối không gian mở. Vì thế tại đây cư dân sẽ được tận hưởng không gian sống đẹp, thoải mái thư giãn với đầy đủ yếu tố ánh sáng.
Nội thất Shophouse được thiết kế đảm bảo tính tiện nghi, đầy đủ. Các công năng bố trí khoa học trong cùng một không gian giúp mang đến sự thông thoáng, thoải mái cho người dùng. Đặc biệt theo các chuyên gia đánh giá thì kiến trúc, nội thất khu Shophouse tại dự án mang tầm cỡ quốc tế. Vì thế sản phẩm có khả năng lại giá trị lâu dài cho người sở hữu. Đồng thời mang đến nguồn sinh lời vượt trội hơn so với các dòng sản phẩm khác.
Vì vậy lựa chọn đầu tư mua bán shophouse tại đây kinh doanh sẽ mang lại lợi nhuận cao cho người sở hữu. Đây là lý do các sản phẩm Shophouse cũng là loại hình thu hút đông đảo nhà đầu tư và giới người mua quan tâm.
ĐĂNG KÝ NHẬN THÔNG TIN TỪ CHÚNG TÔI
Để nhận những thông tin khuyến mãi, chiết khấu hấp dẫn, hãy đăng ký ngay hôm nay

 GIÁ BÁN CÁC SẢN PHẨM TẠI DỰ ÁN THÁNG 7/2024


Giá bán sản phẩm giá biệt thự Vinhomes Ocean Park 2 Hưng Yên
Vinhomes Ocean Park 2 – Hưng Yên đang là cái tên được các nhà đầu tư và giới người mua săn đón hiện nay. Vì vậy tất cả các sản phẩm mà dự án phát triển đều rơi vào tầm ngắm của hộ. Đây là lý do từ khóa giá biệt thự Vinhomes Ocean Park được tìm kiếm nhiều. Vậy thực tế giá bán Vinhome Hưng Yên bao nhiêu?Nhà liền kề Vinhomes Ocean Park nhiêu?
Theo dự kiến, đợt mở bán đầu tiên đối với các sản phẩm tại Vinhomes Hưng Yên được chủ đầu tư ấn định sẽ là vào thời gian quý II/2021. Vì vậy tính đến thời điểm hiện tại thì giá bán dự kiến đã được cập nhật. Trong đó mức giá bán được cập nhật đối với từng sản phẩm là không giống nhau. Vì vậy để lựa chọn được sản phẩm ứng ý tại dự án thì việc nắm rõ giá cho từng hạng mục là rất cần thiết. Sau đây là mức giá biệt thự Vinhomes Ocean Park chi tiết dự kiến cho từng sản phẩm:
  • Giá bán loại hình biệt thự: Vì hiện tại loại hình sản phẩm này đang trong quá trình xây dựng nên hiện chưa có giá biệt thự Vinhomes Ocean Park cụ thể.
  • Giá bán loại hình liền kề Shophouse: giá biệt thự Vinhomes Ocean Park bán dự kiến rơi vào khoảng 80 triệu/m2.
Chính sách ưu đãi hấp dẫn Tháng 7.2024
+ Voucher xe Vinfast trị giá 200 triệu đồng
+ Chiết khấu 12% khi khách hàng lựa chọn PTTT sớm
+ Chiết khấu 9% khi khách hàng lựa chọn PTTT thông thường
+ Chiết khấu 8%/năm tính trên ngày thanh toán trước hạn
+ Ưu đãi lãi suất 9.5%/năm cho giá trị sản phẩm được đảm bảo thực hiện trong hợp đồng mua bán
+ Hỗ trợ vay vốn lên tới 70% giá trị hợp đồng từ ngân hàng
+ Hỗ trợ lãi suất 0% trong thời gian 18 tháng
+ Hỗ trợ 0% cho phí trả nợ trước hạn trong khoảng thời gian hỗ trợ lãi suất

TIẾN ĐỘ TRIỂN KHAI XÂY DỰNG
THE EMPIRE VINHOMES OCEAN PARK 2


Kế hoạch triển khai vượt tiến độ Vinhomes Ocean Park 2 Hưng Yên
Theo như kế hoạch ngắn hạn mà Vinhomes đã công bố gần đây. 3 siêu dự án ngoại thành Hà Nội sẽ được triển khai thi công gồm có VinHomes Đan Phượng, Vinhomes Cổ Loa và Vinhome Hưng Yên (tên chính thức là The Empire Vinhomes Ocean Park Hưng Yên). Trong đó, Vinhomes Hưng Yên đã được chủ đầu tư triển khai trước tiên.
Dự án với các hạng mục nhà ở như biệt thự đơn lập, song lập, tứ lập; căn hộ chung cư; shophouse và nhà liền kề Vinhomes Ocean Park. Đang thổi một luồng gió mới vào thị trường bất động sản Hưng Yên. Từ đây mang đến cho cư dân không gian sống hiện đại, tiện nghi và đẳng cấp cùng với giá biệt thự Vinhomes Ocean Park ưu đãi.
Đến nay, dự án The Empire Hưng Yên đã hoàn thiện xong phần thủ tục pháp lý, giải tỏa san lấp mặt bằng cũng như quây tường bao quanh dự án. Chủ đầu tư đang cho tiến hành triển khai thi công móng cọc cùng các hạng mục xây dựng.
Các giai đoạn thi công Vin Ocean Park 2 Hưng Yên
Theo dự kiến từ chủ đầu tư, The Empire Vinhomes Ocean Park Hưng Yên được triển khai thành 6 giai đoạn thi công. Và dự kiến bàn giao cho khách hàng trong thời gian sớm nhất.
Với tiềm lực kinh tế mạnh cũng như độ uy tín của chủ đầu tư vinhomes, quý khách hàng hoàn toàn có thể yên tâm về chất lượng công trình cũng như tiến độ thi công của The Empire Hưng Yên.
Dự án này hứa hẹn là cú hích cho thị trường BĐS Hưng Yên. Và mang đến một dự án sinh lời, giá biệt thự Vinhomes Ocean Park tốt cho các nhà đầu tư bởi những ưu thế của nó.

Nhận tin tức mới nhất, tình hình giao dịch, biến động giá cả tư vấn dự án, kết nối trực tiếp với chuyên viên để giải đáp thắc mắc của Quý Khách
Liên hệ tư vấn